W.P.STUART-BRUGES M.A., C.Eng., M.I.E.E.
Statement prepared for West Wiltshire Local Plan Inquiry, 26th June 2002
The Pound Lane Site consists of a field whose shape became irregular when a portion was taken for Council Housing in 1951/53.
The Owners have been associated with the village for over 60 years, and have offered to make a substantial amount of land available for recreational and amenity space, which may include any of: Football field, Cricket area, Picnic Area, Marina, site for new Village Hall and Nursing Home.
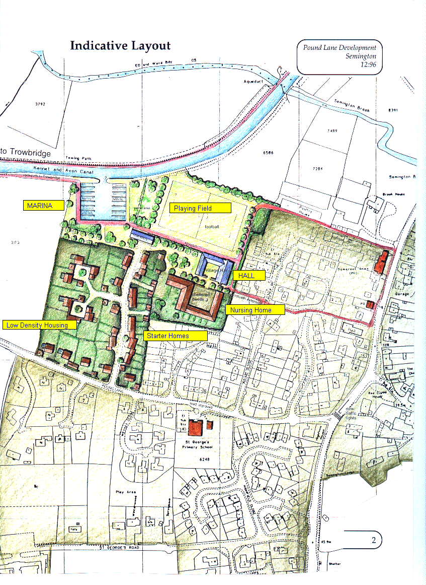
In 1996 some outline proposals, including a marina and a new Village Hall, and a mixture of low-density, sheltered and social housing, were discussed with the Parish Council.
At the request of the Council, the plans were modified to include a playing field, and to emphasise employment opportunities. The Proposal (copy attached) was submitted to West Wilts District Council, and addressed in the Planning Policy Working Group Report of 3rd July 1997. The Report dismissed the site only on the grounds of access limitations.
The Highways Consultants, Tucker Parry Knowles, were commissioned to assess the access situation, and in their report dated 27th August 1997 they gave their opinion that current objections could be overcome, particularly following the implementation of the A350 Melksham/Semington by-pass.
In October 1997 the Parish Council, in a letter to the CPO, expressed their preference for development of the Pound Lane site, rather than on the other side of the village (Motel/Baxter site).
In January 1998 , at a meeting held
between the Owners, members of
the Parish Council and Cllr Carbin (Chairman of the Planning Committee), Cllr Carbin stated that
the Pound Lane Proposal
was "one of the best thought out and generous plans he had
seen"
In October 1998 the Draft Deposit still did not address the village's requirements for sports area , village hall and employment, although these had been discussed at all previous meetings.
On 21st November 1998, a letter of objection from WPSB to the CPO , summarising the Proposal and the above facts, was sent by Recorded Delivery .
In
2000 a
Semington Village Appraisal established, inter alia, that 83% of
Respondants favoured the
development of Canal Amenities.
The Kennet and Avon Canal represents Semington's greatest recreational asset.
Currently it is bordered by privately owned land and villagers do not benefit.
In 2002, the Director of Sally Boats confirmed his continued interest in potential marina development at Semington.
Recent meetings in 2002 between the Owners, the Parish Council, Sports Club and Social Club confirm that good quality development at Pound Lane, with appropriate amenities, could be preferable to alternative high-density schemes.
It is noted that current development guidelines favour denser developments than indicated in the original Proposal.
The Owners would like to create an enhancement to the village life, bringing a balance of employment, amenity and housing.
Note that the plan below shows, coloured, an indicative layout made in 1996 for a mixed development including residential and amenity (football pitch, marina) development. This proposal was discussed with Semington Parish Council, and with the West Wiltshire Planning Department. A By-Pass has since then been opened for Semington village and the High Street is now a cul-de-sac, except for emergency services. This plan was submitted but not included in the W.Wilts Local Plan in 2002.

W.P.Stuart-Bruges >> Details and siteplan << >> Photographs <<
(Co-owner & Executor)